Description
Step into the refined balance of rustic charm and contemporary luxury with The Hamilton Barndo, an expansive 5-bedroom modern barn home plan thoughtfully designed for families who value space, comfort, and enduring quality. Spanning a remarkable 8000 square feet, this home delivers both function and elegance, combining traditional barn-style architecture with modern efficiencies and lifestyle conveniences.
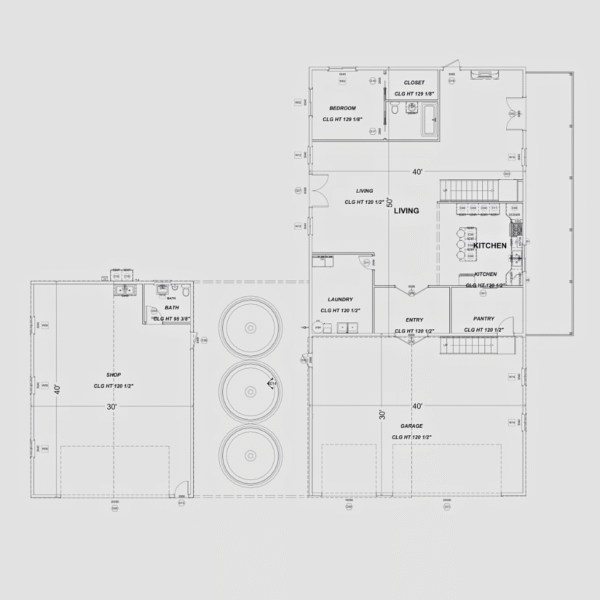
Whether you’re building your forever home or a luxury countryside retreat, The Hamilton is designed to provide an exceptional living experience for large families or multigenerational households. From the heart of the home—the stunning open-concept kitchen and living area—to the practicality of utility spaces like a full-sized laundry room, pantry, garage, and a generous shop, every square foot is crafted for usability and comfort.
Floor Plan That Fits Your Life
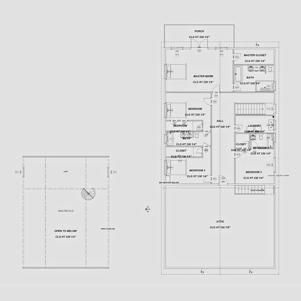
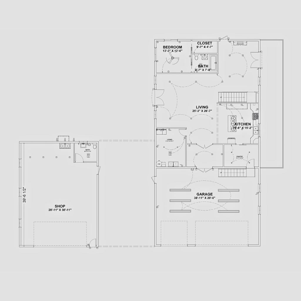
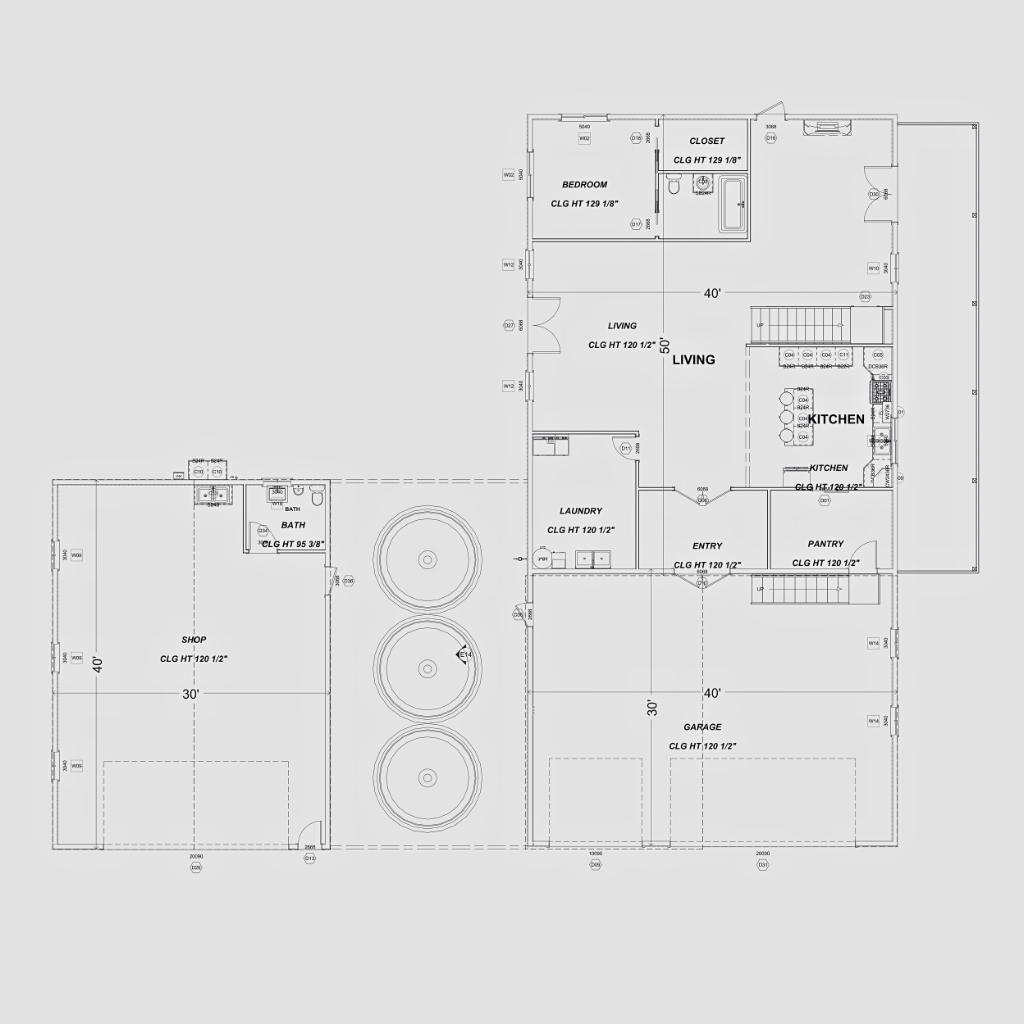
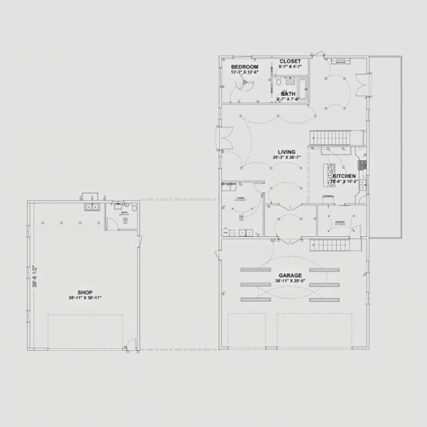
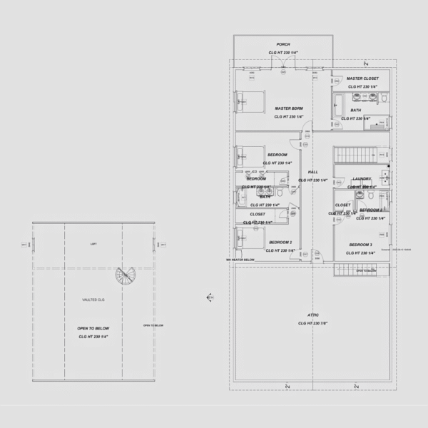
The Hamilton Barndo features a thoughtfully crafted floor plan that provides natural flow, privacy, and utility for everyday living. With five spacious bedrooms, everyone in the home has room to relax and call their own. Whether it’s a children’s bedroom wing or private guest quarters, the floor plan layout ensures peaceful separation while keeping family connected in central gathering areas.
The kitchen, equipped with ample countertop space and adjacent pantry, transitions smoothly into the open living room and dining area, making it ideal for both family meals and entertaining guests. Vaulted ceilings and large windows bring in natural light and lend a feeling of airiness to the living spaces.
Key living zones include:
- 5 Bedrooms – Generous in size, strategically positioned for privacy
- Multiple Bathrooms – Well-placed to serve bedrooms and common areas efficiently
- Large Kitchen – Functional layout with center island and direct pantry access
- Open-Concept Living Room – The heart of the home, great for family and guests
- Entryway – Defined and welcoming with sightlines into the living areas
- Hallways – Wide and accessible, connecting key areas of the home
- Dedicated Laundry Room – Roomy, efficient, and separate from main living areas
- Garage + Shop – Plenty of space for vehicles, tools, hobbies, and storage
- Closets Throughout – Ensuring no shortage of storage in any bedroom
Whether you’re cooking up dinner, relaxing by the fire, or working on a project in the shop, this layout adapts to your lifestyle seamlessly.
Complete Drawing Set Included
When you purchase The Hamilton Barndo plan, you’re not just getting a concept—you’re getting a comprehensive set of digitally-delivered construction drawings prepared for builders and engineers. Each drawing is created with buildability in mind and provides the detail necessary to take your dream home from concept to reality.
Drawing Set Includes:
- Detailed Floor Plan – Fully dimensioned for accurate layout
- Elevations – Front, rear, and side views with structural details
- Electrical Plan – Lighting, switches, outlets, and service locations
- Plumbing Layout – Water lines, fixtures, and drainage configuration
- Framing & Structural Notes – Where applicable, essential for local engineer adaptation
Built with Confidence — Backed by Consac
Every plan on BarndoPlans.com, including The Hamilton, is supported by our trusted engineering partner, Consac. With decades of experience in residential and structural engineering, Consac ensures that your Barndominium is not only beautifully designed but structurally sound.
Your home is more than just a building—it’s where your family lives, loves, and grows. That’s why we’ve partnered with Consac, a nationally recognized engineering firm, to validate the stability and integrity of our plans. When you choose The Hamilton Barndo, you’re getting peace of mind knowing your home is rooted in quality and engineered for safety.
Should your local code require additional modifications, Consac’s team can work with your local engineer to ensure compliance without compromising the design’s intent.
Why Choose Barndo Plans?
At Barndo Plans, we don’t just sell home plans—we help people build their future. Our commitment to quality, service, and trust has made us one of the most respected platforms in the barndominium space. Every home plan we offer is carefully vetted for functionality, aesthetics, and construction feasibility.
What you get with your purchase:
- Immediate digital download of full drawing set (PDF format)
- Unlimited printing rights for personal construction use
- Licensed for single residential use
- Support from our team of plan experts
- Engineering validation by Consac
Ideal for Builders, Designers, and DIY Homeowners
Whether you’re working with a licensed builder, a home designer, or overseeing the construction yourself, The Hamilton Barndo plan gives you and your team the information needed to build with confidence. With large, open spaces and a straightforward structure, this plan is not only aesthetically impressive but also practical to construct.
From slab to finish-out, The Hamilton is designed with real-world building practices in mind.
Begin Your Barndominium Journey Today
Your dream home starts with the right plan. The Hamilton Barndo – 5 Bedroom Modern Barn Home Plan (8000 sq ft.) is a timeless, functional, and luxurious design built for families who dream big. With architectural detail, thoughtful flow, and engineering you can count on, it’s more than just a house—it’s your legacy.
Download your plan set today and take the first step toward living in a home that’s as bold and beautiful as your vision.
Barndo Plans and Consac — Building Trust. Engineering Dreams.









Reviews
There are no reviews yet.