Description
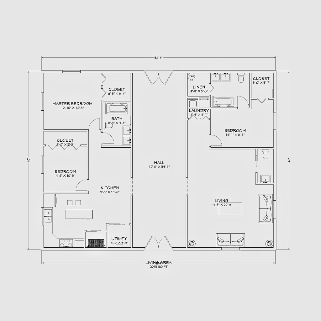
Crafted for those who seek the perfect blend of rustic charm and contemporary living, The Martin Barndo is a thoughtfully designed 3-bedroom modern barn home plan spanning 2,093.33 square feet. This comprehensive drawing set is tailored to meet the needs of families and individuals who desire spacious, functional, and stylish living spaces wrapped in the warm, inviting aesthetics of a modern barn.
The plan includes everything you need to bring your dream Barndominium to life: detailed Floor Plans, Elevation drawings, Electrical layouts, and Plumbing schematics. With these complete construction documents, your building journey is supported from concept to completion, ensuring that every nail and wire is placed with precision.
A Home Designed for Comfortable Living and Practicality
The Martin Barndo thoughtfully incorporates multiple living spaces that balance openness with privacy. The 3 bedrooms are designed with ample space, natural lighting, and convenient access to bathrooms, making it ideal for families or guests. The bathrooms are crafted for functionality without sacrificing modern aesthetics, blending convenience with style.
The heart of the home, the kitchen, is spacious and efficient, outfitted to accommodate everything from everyday meals to entertaining guests. Adjacent to the kitchen, the pantry provides essential storage, keeping the living areas uncluttered and inviting. The laundry area, utility room, and linen closet are strategically placed to maximize efficiency and ease of use, streamlining household chores and storage needs.
The living and hall areas offer generous open spaces perfect for gathering, relaxing, or hosting, while carefully designed closets ensure your belongings have ample storage. This home embraces the essence of barn-style architecture, where spaciousness and utility are harmonized with a clean, modern design language.
Complete Construction Set for Seamless Building
This plan set includes the following critical components, designed by experts and ready for your builders:
- Floor Plan: Clear and precise layout detailing room sizes, door/window placements, and structural elements.
- Elevation Drawings: Exterior views that bring the modern barn aesthetic to life, providing builders with clear instructions on façade treatments, roofing, and materials.
- Electrical Plan: Complete layout to ensure safe, efficient electrical installations, including outlets, lighting, and switches.
- Plumbing Plan: Detailed piping and fixture placement plans ensuring smooth water supply and drainage throughout the home.
These documents meet professional standards, reducing guesswork and enabling efficient construction timelines.
Assurance of Stability and Engineering Excellence by Consac
One of the key assurances with The Martin Barndo plan comes from our authorized engineering partner, Consac Engineering Private Limited. As the trusted engineering partner of Barndo Plans, Consac ensures the structural integrity and stability of your future Barndominium. Their expertise guarantees that your home will withstand environmental demands and meet rigorous engineering standards, giving you peace of mind from foundation to rooftop.
Consac’s involvement means that the engineering considerations — including load-bearing calculations, foundation design, and compliance with safety codes — are expertly integrated into the plan. This partnership sets The Martin Barndo apart as a reliable choice for homeowners who value quality and durability in their home investment.
Designed for the Modern Lifestyle
The Martin Barndo embodies the contemporary barn-style living that balances rustic warmth with sleek modernity. This design fits beautifully into various landscapes — from rural settings to suburban lots — providing a unique aesthetic that is both timeless and trendy.
Whether you are building your forever home, a vacation retreat, or an investment property, this plan accommodates a variety of lifestyle needs. The flexible design can be adapted to suit different preferences, including customizing interior finishes, selecting eco-friendly materials, or incorporating smart home technologies.
Why Choose The Martin Barndo?
- Comprehensive Plan Set: All architectural and engineering drawings needed for smooth construction.
- Modern Barn Aesthetic: A stylish blend of rustic charm and modern elegance.
- Spacious and Functional Layout: 3 bedrooms, ample baths, and versatile living spaces.
- Trusted Engineering Partner: Backed by Consac’s expertise to ensure structural safety and compliance.
- Streamlined Construction Process: Clear, professional documentation to reduce delays and cost overruns.
- Tailored for Your Lifestyle: Functional spaces including kitchen, pantry, laundry, utility, closets, and more.
Your Journey to a Beautiful Barndominium Starts Here
Choosing The Martin Barndo means you are investing in a home that promises quality, comfort, and style. With Barndo Plans’ commitment to excellence and Consac’s engineering assurance, your new barn-style home will be built on a foundation of trust, skill, and innovation.
Explore the potential of barn living with this well-thought-out modern barn home plan. Elevate your lifestyle and create a lasting legacy with The Martin Barndo.








Reviews
There are no reviews yet.