Description
A bold expression of minimalism meets modern barn-style living in The Modern BoxHouse — a thoughtfully designed 1-bedroom plan that balances clean architectural lines, efficient space planning, and warm, livable design. With 1,273.51 sq. ft. of interior space, this compact yet spacious home is ideal for individuals, couples, downsizers, or weekend getaway seekers who want the charm of a barn-style home with the refinement of modern design.
This home is more than a place to live — it’s a lifestyle choice for those who crave intentional living, energy efficiency, and architectural elegance. Whether nestled in a wooded lot, perched on a hillside, or set as a standalone guest retreat, The Modern BoxHouse fits beautifully into a variety of environments and lives well across all seasons.
Plan Highlights
- Total Living Area: 1,273.51 sq. ft.
- Bedrooms: 1 large primary bedroom
- Bathrooms: 1 full bath
- Stories: 1.5 (including a spacious open loft)
- Plan Set Includes: Floor Plan, Elevation Drawings, Electrical Plan, Plumbing Layout
- Functional Spaces: Living Area, Laundry Room, Closet, Hallway, Loft
- Architectural Style: Modern barn / minimalist box-style
Thoughtfully Designed for Function and Flexibility
The Modern BoxHouse maximizes every square foot, blending open spaces with private areas that cater to daily routines and modern living. Upon entering the home, you’re greeted with a seamless flow between the main living space, kitchen, and dining area — made even more inviting by high ceilings, large windows, and an abundance of natural light.
The main level features a generously sized bedroom, designed for comfort and ease of access. Adjacent to the bedroom, the full bathroom provides efficient layout and smart storage solutions.
For everyday functionality, a dedicated laundry room supports your routines, while a well-integrated closet system ensures that storage never gets in the way of living.
Adding to the versatility of this plan is the open loft space, accessible by stairs and overlooking the living area. Whether you envision a guest sleeping space, creative studio, home office, or yoga nook, the loft delivers flexibility without compromising the plan’s compact footprint.
All of these elements are connected by a central hallway that maintains smooth flow and adds privacy where needed.
Digital Drawing Set Includes
Every purchase of The Modern BoxHouse includes a complete set of digital architectural drawings in high-resolution PDF format. This drawing set is professionally prepared and ready to share with your contractor, local building department, or engineer.
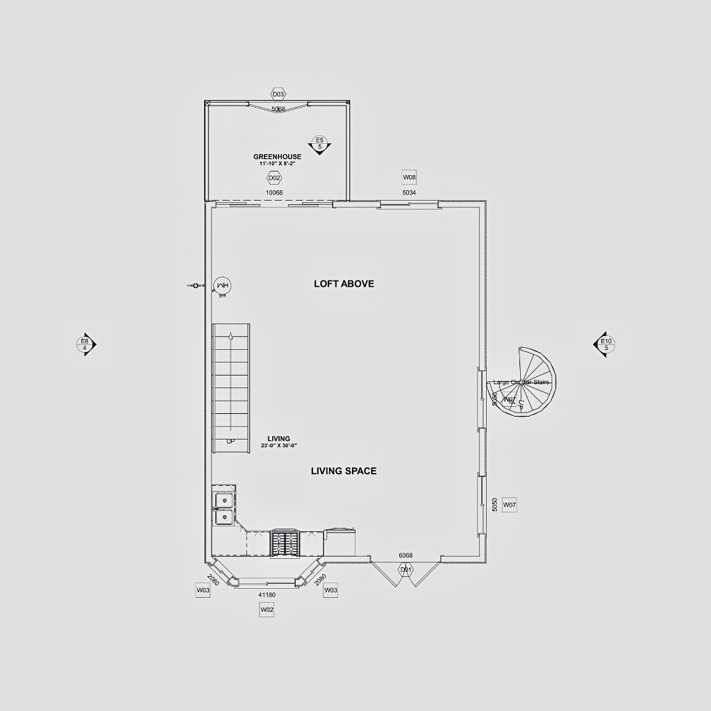
- Floor Plan: Fully dimensioned layout with all room specifications
- Elevation Drawings: Detailed front, rear, and side exterior views
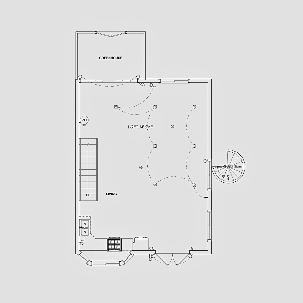
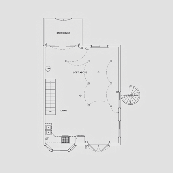
- Electrical Plan: Complete layout of outlets, switches, and lighting fixtures
- Plumbing Plan: Optimized routing for water supply and drainage
- Loft Layout: Clear definition of upper space, sightlines, and access
With this plan set, you’re equipped to move from vision to construction without delay.
Built on Trust: Engineered Stability by Consac
At Barndo Plans, your home’s safety and stability are as important as its design. That’s why all of our plans, including The Modern BoxHouse, are engineered in partnership with Consac — our authorized structural engineering partner.
Consac brings decades of experience in barndominium and residential structural design, providing critical assurance that your home is engineered to stand strong under real-world conditions. Whether you’re building in a temperate region, high wind zone, or snowy environment, Consac’s structural evaluations ensure that the integrity of your barndominium is never in question.
For states or municipalities that require a licensed engineer’s stamp, your plan can be reviewed and certified by Consac to help meet local building codes. With Consac, you’re not just buying a set of plans — you’re building with confidence.
Why Choose Barndo Plans?
When you buy from Barndo Plans, you’re partnering with a trusted leader in barn-style architecture. We don’t just sell plans — we provide the foundation for a successful, inspired build.
Here’s why thousands of customers trust Barndo Plans:
- ✔ Professionally Designed: Modern barn-style homes designed for real-world living
- ✔ Immediate Access: Receive your digital plan set instantly upon purchase
- ✔ Customizable Layouts: Need modifications? Our in-house design team is here to help
- ✔ Engineer Approved: Backed by Consac, ensuring structural confidence
- ✔ Dedicated Support: Our team is ready to guide you through the process from plan to build
Perfect For:
- Downsizers seeking simplicity without compromise
- Weekend getaway homes or Airbnb rentals
- Singles or couples living intentionally
- Remote workers needing peaceful, well-designed space
- Nature lovers looking for a minimalist retreat
- First-time home builders wanting a smart, affordable start
Whether you’re looking to escape the noise, build a high-end rental, or create a home that reflects your lifestyle, The Modern BoxHouse delivers architectural beauty, everyday functionality, and the trusted assurance of professional design.
Next Steps: Purchase and Build with Peace of Mind
Your digital plan set will be available for instant download upon purchase. All files come in a high-quality PDF format, easy to share with builders and permitting offices.
Need your plans tailored to your region or modified for your preferences? Our team is ready to help with customization options, including structural review by Consac if required in your area.
The Modern BoxHouse is more than just a home design — it’s a foundation for the life you want to build. Minimalist. Modern. Smart. Safe. Backed by Barndo Plans and engineered with confidence by Consac. Let’s bring your dream barndominium to life.








Reviews
There are no reviews yet.