Description
Step into the elegance and practicality of The Agnita Barndo, a thoughtfully designed 4-bedroom modern barn home plan that combines rustic charm with contemporary convenience. Perfectly crafted for families seeking open-concept living with distinctive farmhouse character, this home plan offers everything you need to create a comfortable, functional, and stylish space to call home.
This barndominium plan includes a complete digital drawing set, covering:
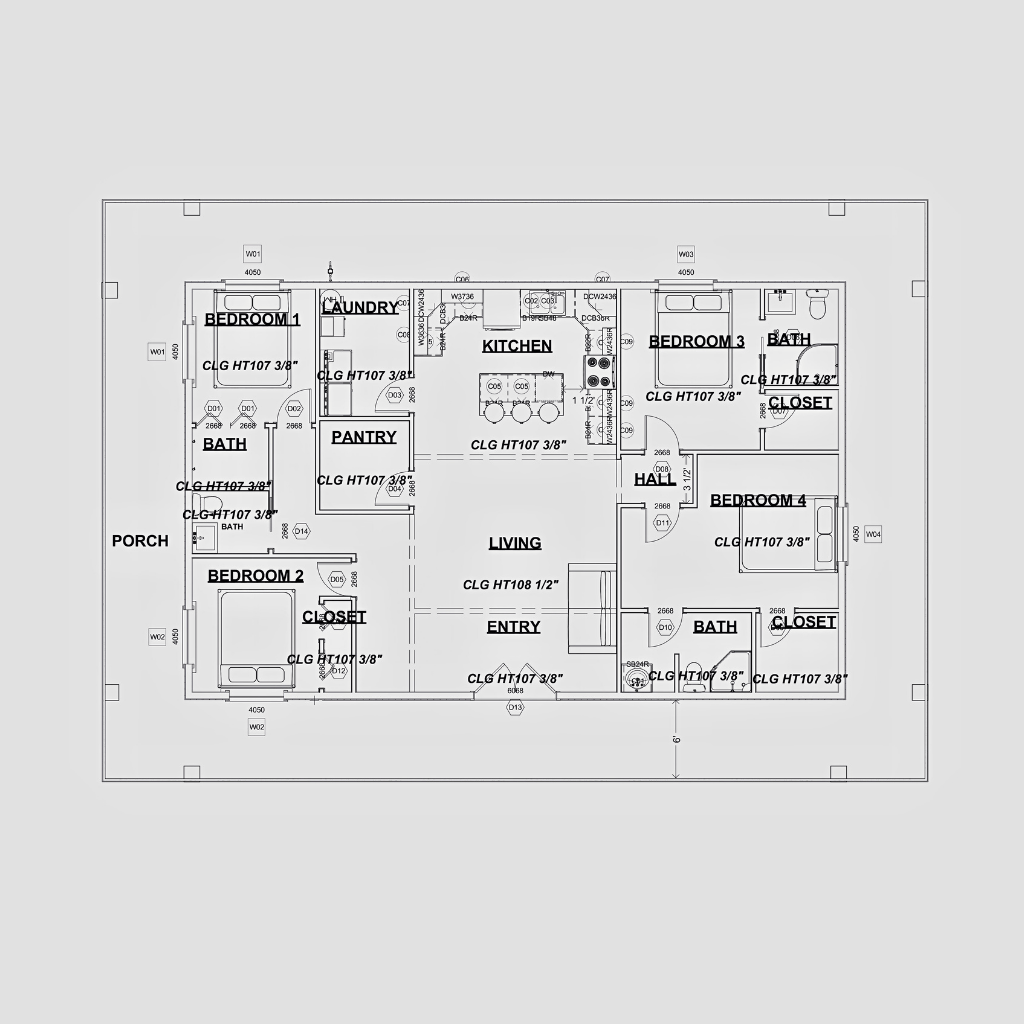
- Floor Plan
- Elevations
- Electrical Layout
- Plumbing Diagram
All plans are prepared with precision and care, and verified for quality by Consac, our authorized structural engineering partner. Every Barndo Plan is more than just a drawing — it’s a secure foundation for your future. With Consac’s structural assurance, you can build confidently knowing your home is engineered for long-term durability, safety, and code compliance.
A Functional Family Layout Designed for Modern Living
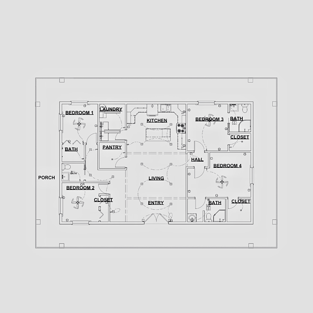
At just under 2,500 square feet, The Agnita Barndo provides a spacious single-story layout that maximizes flow, functionality, and natural light. Designed with four generously sized bedrooms, this layout is perfect for growing families, multigenerational households, or anyone who values privacy, flexibility, and shared gathering spaces.
Key Features Include:
- 4 Bedrooms – Ample space for family, guests, or even a home office.
- Dedicated Laundry Room – Practical design for daily convenience and home efficiency.
- Spacious Kitchen with Pantry – A central hub for entertaining or quiet meals at home.
- Dining Area – Seamlessly connected to the kitchen and living room, making family meals and holidays a joy.
- Multiple Bathrooms – Thoughtfully placed for accessibility and privacy.
- Closet Space Throughout – Storage is never an afterthought in this design.
Whether you’re building your forever home on a wide-open homestead or placing it on a modest lot, this plan provides the balance of simplicity and sophistication you’ve been looking for.
Modern Barn Aesthetic Meets Timeless Durability
The Agnita Barndo carries the essence of the American barn: strong, welcoming, and built to last. From the striking elevation to the thoughtfully designed interior, the plan speaks to a lifestyle that values open skies, family closeness, and clean architectural lines.
Key Design Elements:
- High ceilings and open-span living areas.
- Metal or hybrid exterior options for longevity and aesthetic flexibility.
- Energy-efficient window placements to enhance natural light and ventilation.
- Optional covered porches or patio extensions for outdoor living.
The architecture allows flexibility for builders and homeowners alike — whether you’re aiming for a traditional barn look with metal siding and wood accents, or leaning into a more refined modern farmhouse feel.
Quality You Can Trust – Backed by Engineering Expertise
At Barndo Plans, quality and safety are non-negotiables. That’s why The Agnita Barndo is backed by Consac, our trusted structural engineering partner. Every plan you purchase from Barndo Plans undergoes rigorous engineering review to ensure it aligns with best practices for stability, buildability, and long-term resilience.
Consac is known for its commitment to excellence in residential structural design. Their approval means your barndominium isn’t just beautiful — it’s built on a foundation of safety, with attention to the structural integrity that your home deserves.
With Consac’s engineering confidence, you can hand over your plans to a local builder or contractor, knowing they have everything needed to begin construction without delay or doubt.
What’s Included in Your Digital Plan Set:
When you purchase The Agnita Barndo plan from BarndoPlans.com, you’ll receive:
- Fully detailed floor plan layout
- Exterior elevations – front, rear, and side views
- Electrical layout – switches, lights, and outlets
- Plumbing diagram – fixtures and routing
- Digital delivery in PDF format – ready for printing, contractor review, and submission to local authorities (if required)
Please note that local code compliance, site-specific engineering (e.g., wind/seismic loads), and permit applications may require additional consultation with your local jurisdiction. Consac can provide additional engineering services as needed — please contact us for referrals.
Why Choose Barndo Plans?
When you choose BarndoPlans.com, you’re choosing peace of mind. We understand that building a home is one of the most personal, emotional, and important investments you’ll ever make. That’s why every plan we offer is crafted with care, reviewed by engineering professionals, and backed by our commitment to quality and transparency.
Our team is here to support you through the journey — from selecting the right floor plan to answering questions during your build. You’re not just buying blueprints — you’re investing in a vision, and we’re here to help bring that vision to life.Ready to Build
Your Dream Barndominium?
The Agnita Barndo is more than a home design — it’s a lifestyle blueprint, created for those who value simplicity, space, and stability.
Buy with confidence, build with clarity, and start your journey with a plan you can trust — from Barndo Plans and our engineering partner, Consac.












Reviews
There are no reviews yet.