Description
Designed for comfort, function, and flexibility, The Pam and Troy Barndo is a modern 2-bedroom barn-style home plan that blends timeless architecture with today’s most desirable layout features. Whether you’re planning your first home, a guesthouse, or a low-maintenance retirement retreat, this floor plan delivers an efficient, well-balanced living space.
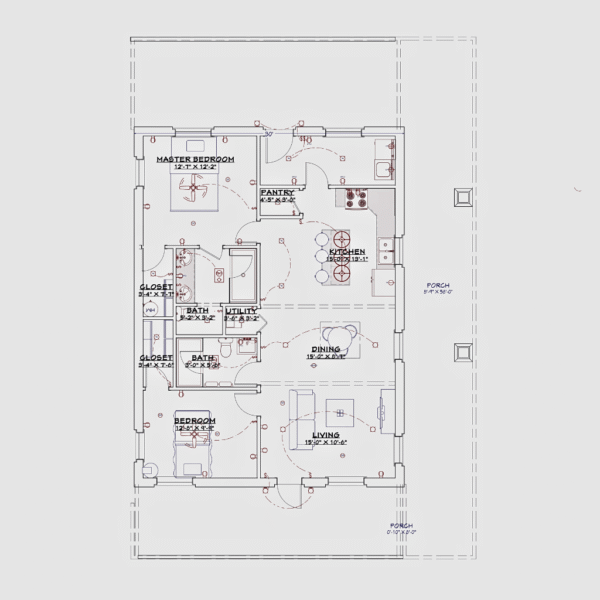
With 1,348 sq. ft. of thoughtfully utilized interior space, this home is perfect for small families, couples, or empty-nesters who want open-concept living in a manageable footprint.
Your digital plan set includes:
- Floor Plan
- Elevations
- Electrical Layout
- Plumbing Diagram
- Foundation Plan
Every plan is reviewed and supported by Consac, the trusted engineering partner of Barndo Plans. Their expert structural review ensures that your barndo isn’t just attractive — it’s structurally sound, safe, and ready for permitting and construction.
Well-Balanced, Practical Design for Everyday Living
At the heart of The Pam and Troy Barndo is an open living, kitchen, and dining area — perfect for entertaining, cooking, or simply enjoying time with family. Both bedrooms are thoughtfully located for privacy, and the utility room keeps daily chores tucked out of the way.
Key Features Include:
- 2 Bedrooms – Comfortable and private, ideal for primary residence or guests.
- Open-Concept Living Area – Seamless integration of kitchen, dining, and living spaces.
- Kitchen with Pantry – Efficient and functional, with dedicated food storage.
- Utility Room – Laundry and utility needs are met with ease.
- Closet Space – Practical storage solutions throughout the home.
- Full Bathroom(s) – Convenient placement between bedrooms and living zones.
The foundation plan gives builders added clarity for preparing the site and ensuring a stable, long-lasting construction process.
Traditional Looks, Modern Comfort
Classic barn-inspired aesthetics give this home plan a sense of warmth and durability, while its modern interior layout speaks to today’s lifestyle needs. Clean lines, flexible room usage, and smart space planning allow you to personalize this barndo as a permanent residence, rental, or retreat.
Structural Assurance by Consac
Your home is a major investment — not just financially, but emotionally too. That’s why Barndo Plans partners exclusively with Consac, an experienced engineering firm dedicated to structural safety and code compliance.
With their engineering stamp of confidence, your building team will have the information they need to construct a barndominium that’s stable, long-lasting, and ready for your future.
What You’ll Receive in This Plan Set:
- Complete Floor Plan
- Detailed Elevations
- Full Electrical Layout
- Engineered Plumbing Diagram
- Accurate Foundation Plan
- Digital PDF format, downloadable immediately after purchase
You’ll be ready to take your plans to a builder, engineer, or local permitting office without delays or guesswork.
Confidence from the Ground Up
Choosing The Pam and Troy Barndo means selecting a home plan that fits real life — with livable spaces, logical flow, and classic barn appeal. With expert structural backing and digital convenience, this home plan sets the stage for a smooth, secure building process.
From our design table to your foundation, Barndo Plans is with you every step of the way.












Reviews
There are no reviews yet.