Consac ENGINEERING DESIGN PARTNER

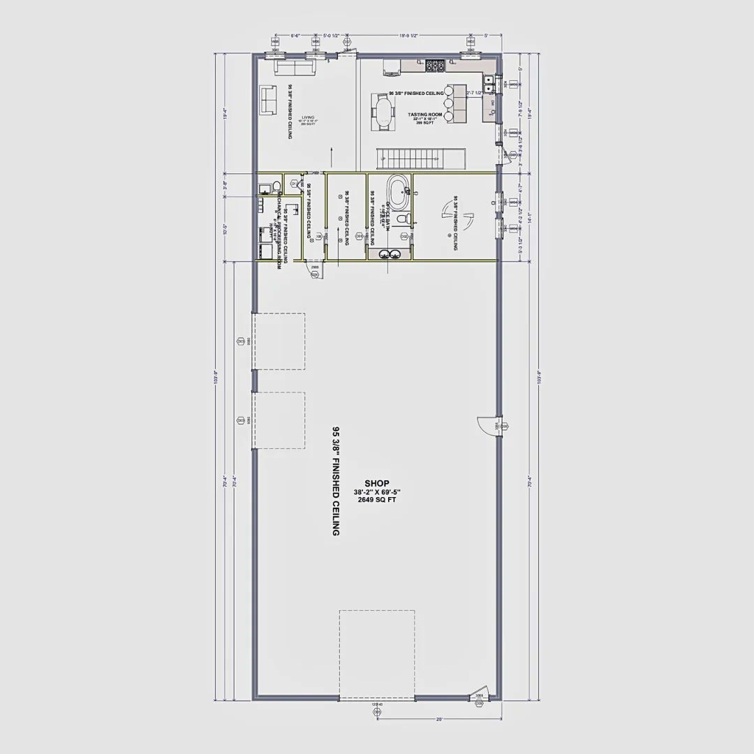
The Slow Elk Acres Barndo – 1-Bedroom Modern Barn Home Plan (1,008 sq. ft.) PLAN #956-206-1187

Sq Ft 1,008 sq. ft.
Beds 1,008 sq. ft.
Bath 1
1/2 Baths 0
Car 0
Stories 1
Width N/A
Depth N/A

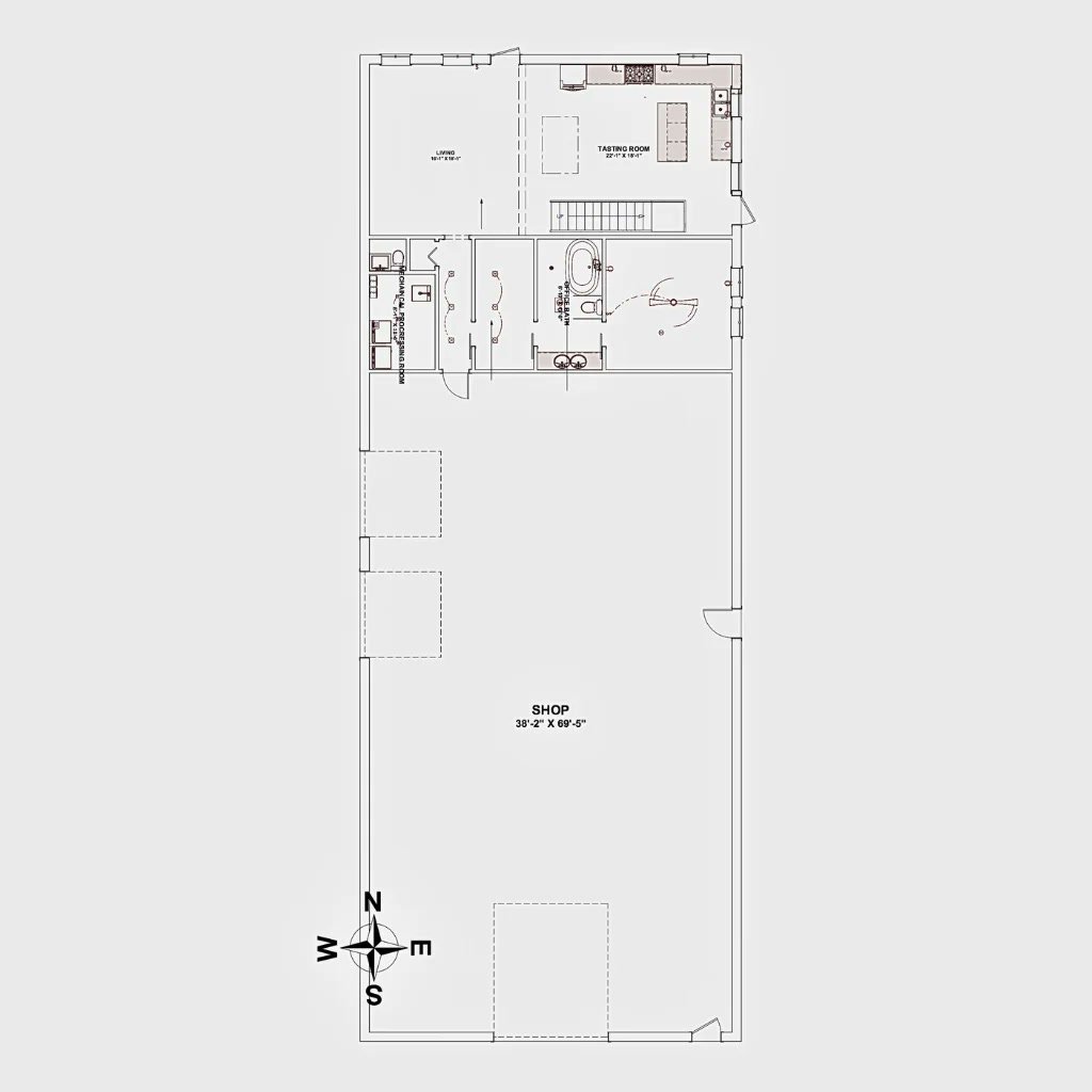
Floorplan Drawings

Main Floor
Floor Plan Drawing
Main Floor
Floor Plan Drawing
Main Floor
Floor Plan Drawing
Main Floor
Floor Plan Drawing
   

What's Included in these plans?

  • A perfect fit for vineyards, microbreweries, or product showcases
  • Can be used for food prep, fermentation, or equipment housing
  • Designed for fulfillment, labeling, and storage
  • Ensure comfort and organization

Ask Us A Question

To request a modification quote, please use the Modification Request Form.

Browse Similar PlansVIEW MORE PLANS

X
Home Shop Account Sign In
Cart
Cart
X